永和大樓

房屋基本資料
案名永和電梯全新裝潢三房 案號A197132
地址新北市永和區民有街6樓
銷售狀態帶看中售價
售1748萬
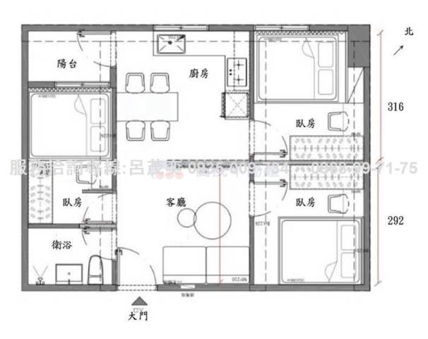
房屋類型大樓_華廈 總登記坪數22.4 坪
格局3房,2廳,1衛,1陽台,1廚房屋齡28年
每坪單價78.04萬/坪公設比12.54%
車位沒有車位法拍件 不是
建物所在樓層6樓/16樓管理費1570元/月
管委會中庭沒有
電梯 是否為凶宅 不是
300公尺內嫌惡設施 面前道路 20米
面寬 縱深
邊間不是銷售來源不動產經紀人/專業仲介
房屋特色
🏡✨這是一間兼具便利與舒適的優質好宅!

鄰近學校、銀行與幼兒園,孩子上學、金融往來都十分方便,生活步調更能井然有序。

周邊商店林立、購物便利,無論是日常採買、餐飲外食或休閒娛樂,都能在短短步行距離內輕鬆滿足。

生活機能完善,讓您省下寶貴時間,享受更多與家人相處的時光。

🏡✨雖身處熱鬧商圈,卻能鬧中取靜,保有難得的清幽居住環境。

低公設比設計,讓您花的每一分錢都能真正用在實坪空間上,實用又划算,特別適合注重生活品質的小家庭或小資族群。

🏡✨此外,社區備有24小時管理與信件收發中心,安全無虞又便利貼心,讓您的居家生活更安心。

這不僅是一間房子,更是一個能讓您與家人安心成長、自在生活的理想居所。

心動不如馬上行動,這樣的物件難得一見,錯過不再!

📞專屬預約:0935-009-734呂經理

僑茂房屋仲介|(91)北縣字第583號

個人的行銷網站http://www.marklu.idv.tw

歡迎加入FB"築夢安居交流社團"PO文分享討論刊登廣告~謝謝您!!

https://www.facebook.com/groups/632016442596258
坪數說明
建物登記總坪數22.4土地登記總坪數2.1
主建物坪數18.02停車位坪數
附屬建物坪數1.57公共設施坪數2.81
增建坪數地下室坪數
周邊環境
生活機能823公園/大勇街市場/大潤發鄰近交通捷運:永安市場站/景平站 公車:中興二村站/潭安里站
鄰近地標智光商職公園綠地八二三紀念公園
鄰近學區秀山國小,永和國中,福和國中捷運站永安市場,景平
房屋聯絡人資訊
聯絡人姓名呂茂奕
(煩請告知聯絡人,您是在889房屋網看到這則廣告,真摯感恩您的幫忙)
手機
0968-997-175(呂茂奕)
Line加入好友
所屬公司名稱呂茂奕房地產服務網
公司電話0935009734公司傳真
公司地址台北市中正區新生南路一段60號六樓
網址http://www.marklu.idv.tw
贊助商廣告

新北永和民有街6樓-大樓

永和大樓-0
永和大樓-0
永和大樓-1
永和大樓-1
永和大樓-2
永和大樓-2
永和大樓-3
永和大樓-3
永和大樓-4
永和大樓-4
永和大樓-5
永和大樓-5
永和大樓-6
永和大樓-6
永和大樓-7
永和大樓-7
永和大樓-8
永和大樓-8
永和大樓-9
永和大樓-9
永和大樓-10
永和大樓-10
永和大樓-11
永和大樓-11
物件留言
請注意,如果您詢問的內容與物件不相符合或是廣告,經過審核,系統將會直接刪除您的發問內容
等待圖示
檢舉物件不實
等待圖示
相似物件
本房屋網站為租用式開放房仲網站建置平台,僅提供房屋仲介會員刊登-永和大樓 -等房屋資訊參考,並不涉入任何諮詢、交易。物件(服務)聯絡人公佈的圖文影音資訊若有侵犯智財權或與客戶聯絡交易過程中若衍生民事或刑事等法律問題, 皆與本房屋網站無關。電話:07-7963288